Thinking about building a custom home on your own land? Download our free guide!

333 Veterans Boulevard

Knoxville, IA
$354,900

1.5-story

3 Bedrooms

2.5 Bathrooms

1763 Base Sqft

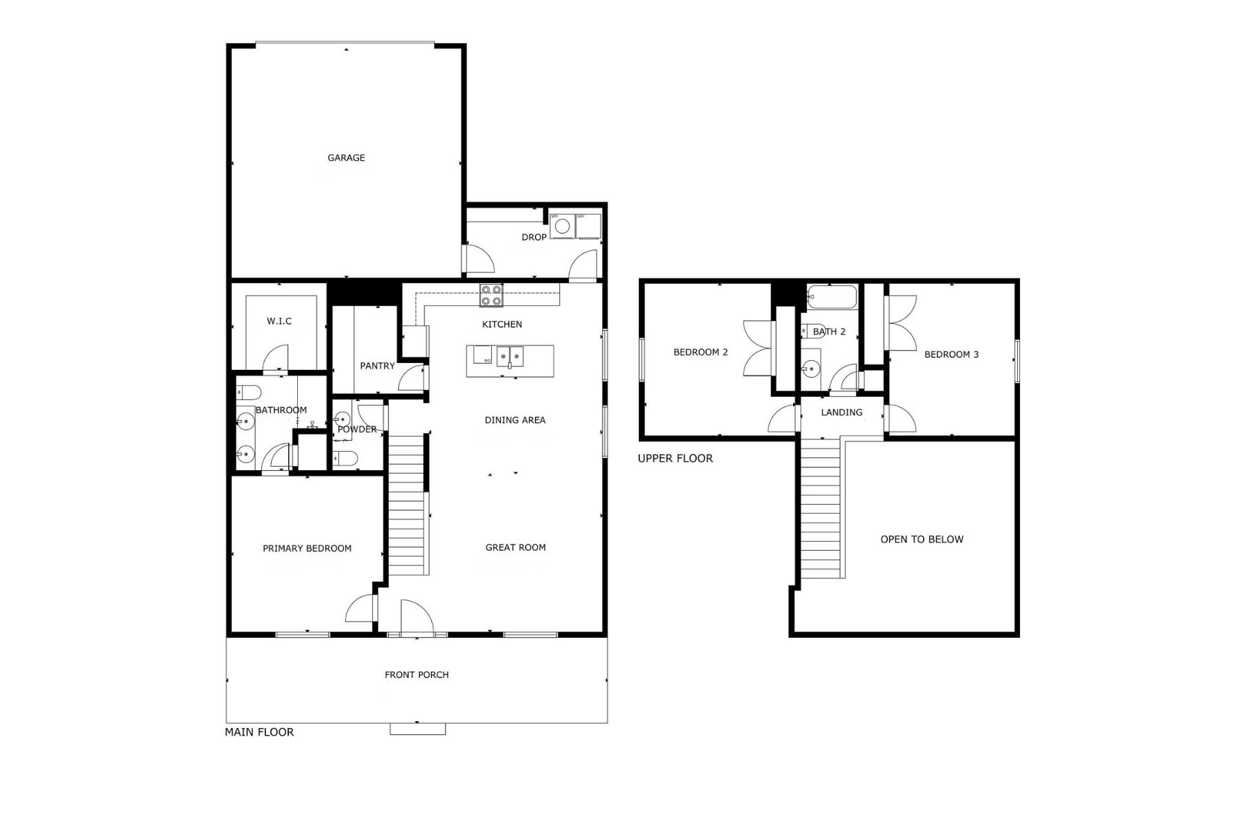
Welcome to the Dolly – a charming 1.5 story home in the heart of the Veterans District, offering 3 bedrooms, 2.5 baths, and 1,763 square feet of thoughtfully designed living space. Enjoy a spacious front porch, walk-in pantry, dropzone, and a 2-car garage. Upstairs, find two bedrooms and a full bathroom. The basement is ready for your future finish, offering even more potential. Located just steps from the new park, splash pad, Knoxville High School, and the iconic Knoxville Raceway, this home blends comfort, community, and convenience.

Floorplan

Explore Knoxville

Amenities

  • Splashpad & playground
  • Walking distance to school district and baseball fields
  • Walking trails
  • Close proximity to Knoxville Raceway
  • Nearby grocery stores
  • Home to local restaurants & breweries
  • Pine Knolls Golf Club

Reach Out!​

CONTACT US

Interested in learning more? Contact us below and a team member will be in touch.

A Spring Build Starts with Fall Planning